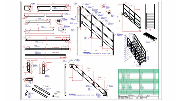
Trappen en bordessen
Trappen en bordessen
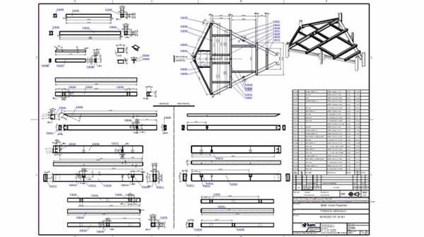
Bordessen en trappen zijn noodzakelijk ten behoeve van het realiseren van een optimale fabrieks layout.
Interesse? Neem vrijblijvend contact op of vraag onze catalogus aan
De hoeveelheid ruimte en machines bepalen de basis layout, de transportbanden, buffer posities e.d leggen beslag op de ruimtes tussen de machines. Deze ruimtes worden al naar gelang de fuctionaliteit toegankelijk gemaakt met trappen en bordessen. WTB Rijkhof is zich bewust van de noodzaak van trappen en bordessen. De ervaring met deze constructies is dan ook legio.












